Kontakt

Artikel-Merkmale:

  • Kombi-Induktion: verbinde zwei Induktionszonen zu einer großen Kochfläche.
  • touchSlider: ermöglicht die Einstellung der Leistungsstufe mit nur einem Finger.
  • Angenehm leise: minimale Geräuschentwicklung ohne Beeinträchtigung der Absaugleistung.
  • Einfach zu reinigen: minimaler Reinigungsaufwand für den integrierten Dunstabzug.
  • Home Connect: Alle Informationen über dein Kochfeld via Smartphone oder Tablet - auch von unterwegs.
HerstellerSIEMENS
WerksnummerED811HQ26E
TypennummerED811HQ26E
EAN4242003946275
Energieeffizienzklasse
Produktdatenblatt

Produktanfrage

Haben Sie Fragen zu diesem Produkt?

Schwarzes Glaskeramikkochfeld von Siemens mit vier Kochzonen und roter Digitalanzeige. Touch-Bedienfeld an der Vorderseite.
Schwarzer Kochfeldrahmen mit vier Kochzonen. Mittig eine lange, rechteckige Absaugfläche für Dunstabzug. Bedieenelemente unten.
Schwarzes Induktionskochfeld von Siemens mit digitaler Anzeige und braunem Steinmuster darunter.
Schwarzes Induktionskochfeld mit 4 Kochzonen und zentralem Bräteraufsatz. Maße: 902x525mm.
Dunkler Induktionskochfeld auf hellgrauer Arbeitsplatte in moderner Küche. Im Hintergrund sind Kochutensilien und Pflanzen zu sehen.
Schwarzes Glaskeramikkochfeld auf braunem Marmortisch. Nahaufnahme der schmalen, schwarze Umrandung des Kochfeldes.
Technische Zeichnung einer Gerätefront mit Maßen in mm. Breite 750mm, Höhe 257mm, Tiefe 450mm.
Technische Zeichnung eines Einbaukochfelds mit Maßangaben in Millimeter. Darstellung der Einbausituation und benötigten Ausschnitte.
Technisches Schema einer Wandinstallation mit Maßangaben in Millimetern. Darstellung der Abmessungen für Breite, Höhe und Tiefe.
Technische Zeichnung einer Gerätefrontansicht mit Maßangaben in Millimeter. Angegeben sind Höhen, Breiten und Tiefen.
Technische Zeichnung eines Adapterstücks rund-flach mit Maßangaben in Millimetern: 470, 500, 616, 648 und ≥700.
Küchenarbeitsplatte mit Einbaukochfeld und Spüle, maßstabsgetreue Zeichnung mit Angaben zu Abmessungen in Millimetern.
Technischer Bauplan einer Dunstabzugshaube mit Maßangaben in Millimetern und Beschriftungen für Komponenten wie Diffusor und Anschlussmuffe.
Technische Zeichnung eines Einbauschranks mit Maßangaben in mm, perspektivische und Seitenansicht, Innenraum mit Fachböden dargestellt.
Technischer Plan einer Einbauküche mit Maßangaben in Millimetern. Ansicht von oben und seitlich, Draufsicht mit Innenraum.
Technischer Plan einer Möbelkonstruktion mit Maßangaben in Millimeter. Ansicht von oben und von vorne, zeigt Regal und Schrankelemente.
Technischer Querschnitt einer Dunstabzugshaube mit Maßangaben in Millimetern. Details zu Rohranschlüssen und Abmessungen sind erkennbar.
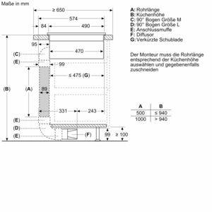
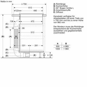
Technisches Schema einer Kücheneinheit mit Maßangaben in Millimetern und Buchstaben zur Identifizierung der einzelnen Teile.
Küchenschrank mit Schubladen und Ablagefächern, dargestellt als technische Zeichnung mit Maßangaben in mm, Ansicht von oben und vorne.
Technische Zeichnung eines Dunstabzugs. Ansicht von vorne und Seite mit Maßangaben in mm. Darstellung eines Gerätegehäuses mit Abzugshaube.
Technische Zeichnung eines Waschtischunterschranks mit Maßen. Seiten- und Vorderansicht mit Angaben in mm. Abflussrohr ist sichtbar.
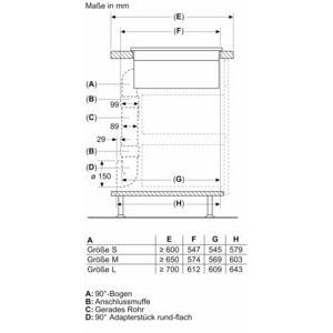
Technisches Schema eines 90°-Bogens mit Maßen in Millimeter. Verschiedene Größen (S, M, L) werden tabellarisch dargestellt.
Technische Zeichnung eines Abzugsrohrs mit Maßen in Millimetern und Angaben zu Größen S, M und L in Tabellenform.
Technischer Plan mit Abmessungen in mm: 213x80mm, 167mm hoch, 144mm breit. Darstellung eines Möbelstücks von vorne.

Weißes Vorhängschloss auf schwarzem Hintergrund. Text: „Child Safe Lock“. Symbol für Kindersicherung.Weißer Schraubenschlüssel mit Funksignal auf schwarzem Hintergrund. Darunter der Text „Remote Diagnostics“ in weißer Schrift.Weißes Symbol einer Pfanne über einer Bogenlinie auf schwarzem Grund. Darunter steht „fryingSensor Pro“ in weißer Schrift.Weißes Symbol auf schwarzem Hintergrund: Vier Kreise, in der Mitte ein kleines Quadrat mit „IN“. Darunter „Combi-Zone“.Blaues Logo mit weißem Haus in einer Sprechblase. Darunter der Text „Home Connect“. Weiße Schrift auf grauem Hintergrund.

Flexibilität der Kochzonen

  • 2 Kombi Zonen: Bei Verwendung von größerem Kochgeschirr werden zwei Kochzonen zu einer größeren verbunden.
  • Kochzone vorne links: 190 mm, 210 mm, 2.5 kW (maximale Leistung 3.7 kW)
  • Kochzone hinten links: 190 mm, 210 mm, 2.5 kW (maximale Leistung 3.7 kW)
  • Kochzone hinten rechts: 190 mm, 210 mm, 2.5 kW (maximale Leistung 3.7 kW)
  • Kochzone vorne rechts: 190 mm, 210 mm, 2.5 kW (maximale Leistung 3.7 kW)

Benutzerfreundlichkeit

  • touchSlider: Steuern Sie die Leistung direkt mit der aufgedruckten Touch-Leiste.
  • Favoriten-Taste: Mit einer konfigurierbaren Taste direkt auf Lieblingsfunktionen zugreifen.
  • 17 Leistungsstufen: Stelle die Hitze mit 17 Leistungsstufen (9 Hauptstufen und 8 Zwischenstufen) präzise ein.
  • Warmhalte-Funktion, wählbar über Favoriten-Taste/Home Connect App (für Geräte, die mit dem Home Connect-Konto verbunden sind): Warmhalten von Speisen bei voreingestellter niedriger Leistungsstufe.
  • Timer mit Abschaltfunktion: Schaltet die Kochzone am Ende der eingestellten Zeit aus (z. B. für gekochte Eier).
  • Timerfunktion (kann anstelle des Abschalttimers ausgewählt werden): Ein Signal ertönt am Ende der eingestellten Zeit (z. B. beim Pastakochen).
  • Die Lautstärke der Signaltöne kann an die persönlichen Vorlieben und Bedürfnisse angepasst werden.

Zeitersparnis und Effizienz

  • powerBoost-Funktion für alle Kochzonen: Mit 50 % mehr Leistung  z. B. Wasser schneller zum Kochen bringen als auf höchster Leistungsstufe.
  • powerBoost-Funktion für Pfannen, wählbar über Favoriten-Taste/Home Connect App (für Geräte, die mit dem Home Connect-Konto verbunden sind): Erhitzt Pfannen schneller als auf höchster normaler Leistungsstufe und schützt gleichzeitig die Pfannenbeschichtung.
  • quickStart: Beim Einschalten wählt das Kochfeld automatisch die Kochzone aus, auf dem im ausgeschalteten Zustand Kochgeschirr platziert wurde.
  • reStart: Im Falle von unbeabsichtigtem Ausschalten des Kochfeldes bleiben alle Einstellungen erhalten, wenn du innerhalb von 4 Sekunden wieder einschaltest.

Kochunterstützung

  • Bratsensor Pro mit 11 Temperaturstufen: Verhindert ein Anbrennen durch die automatische Temperaturregelung des Sensors.
  • Kochassistent: Einfach über die Home Connect-App die richtige Temperatureinstellung für ein bestimmtes Gericht finden.

Konnektivität

  • Home Connect Funktion (WLAN): Überprüfe, ob das Kochfeld auch dann ausgeschaltet ist, wenn du nicht zu Hause bist und suche in der Home Connect-App nach Rezepten oder zusätzlichen Funktionen.
  • Smart Home Trigger (verfügbar mit verbundenem Home Connect-Konto): Öffnen Sie mit der Favoriten-Taste das intelligente Universum Ihres Kochfelds und steuern Sie andere Smart Home Geräte aus Ihrem Haushalt (Partnerservice erforderlich).
  • Aktualisierbares Gerät (verfügbar mit verbundenem Home Connect-Konto): Halten Sie das Gerät immer auf dem neuesten Stand der Software.

Design

  • Rahmen: Rahmenlos aufliegend

Sicherheit

  • 2-stufige Restwärmeanzeige je Kochzone: Zeigt an, welche Kochzonen noch heiß oder warm sind.
  • Kindersicherung: Verhindert eine unbeabsichtigte Aktivierung des Kochfeldes.
  • Pause-Funktion: Unterbrechen Sie das Kochen, z. B. um die Haustür zu öffnen.
  • Hauptschalter: Alle Kochzonen auf einmal ausschalten.
  • Automatische Sicherheitsabschaltung: Aus Sicherheitsgründen schaltet sich das Kochfeld nach einer voreingestellten Zeit ohne Interaktion automatisch ab.

Installation

  • Maße des Gerätes (HxBxT mm): 223 x 802 x 522
  • Erforderliche Nischenmaße (HxBxT mm): 223 x 750 x (490 - 490)
  • Minimale Arbeitsplattenstärke: 16 mm
  • Gesamtanschlusswert: 7400 W
  • powerManagement Funktion: Bei Bedarf die maximale Leistung begrenzen (abhängig von der Absicherung der Elektroinstallation).
  • Netzkabel: 110 cm, Anschlusskabel beigelegt in Verpackung

Zubehör

  • cleanAir Plus Geruchsfilter, Teleskopschieberelement für ungeführte Umluft beigelegt
  • Installation in einen 60 cm Unterschrank möglich.

Integriertes Downdraft-Lüftungssystem

  • Induktionskochfeld mit vollintegriertem, leistungsstarkem Downdraft-Abzugsmodul.
  • Geeignet für Konfigurationen in Abluft oder Umluftmodus (inkl. differenzierter Softwaremodi). Installationszubehör für die ungeführte Umluft, darunter vier cleanAir Plus Geruchsfilter und ein Teleskop-Schiebeelement, sind im Lieferumfang des Kochfeldes enthalten. Zubehör für andere Einbaumöglichkeiten ist erhältlich, Details in den Planungshinweisen.
  • Ästhetisch integriertes, flächenbündiges Lufteinlassdesign mit schwebendem, hitzebeständigem Glaskeramikelement für freie Bewegung und Platzierung des Kochgeschirrs.
  • Automatisches Einschalten des Lüftungssystem bei Nutzung einer Kochzone.
  • Automatische verzögerte Abschaltung nach dem Kochen, um Restgerüche zu beseitigen (in spezifischer ultra-geräuscharmer Lüfterrstufe, 12 min (Abluft), 30 min (Umluft), manuell abschaltbar)
  • Gebläsetechnologie mit hocheffizientem und geräuscharmen EcoSilence Drive Motor. Strömungstechnisch optimierte Luftführung im Innenraum
  • Einfaches Entnehmen und Reinigen der Fettfilter- und Überlaufschutzeinheit.
  • Bequeme Ein-Hand-Entnahme der Filter-Einheit.
  • Großflächige, 12-lagige Edelstahl-Fettfilter für hohe Fettfiltrationseffizienz (94 %).
  • Alle Teile sind einfach zu reinigen, spülmaschinengeeignet und hitzeresistent.
  • Kondensat- und Überlaufschutzbehälter, ca. 200 ml Aufnahmekapazität.
  • Sicherheitsüberlauftank (spülmaschinengeeignet) mit zusätzlichen 700 ml Aufnahmekapazität. Einfach zugänglich und von unten abnehmbar.
  • Insgesamt eine Aufnahmekapazität von 900 ml (200 ml + 700 ml)
  • Wasserdichtes Lüftungssystem
  • Für Umluftkonfiguration: 2 x 2 Akkus direkt integrierter Geruchsfilter cleanAir Plus.
  • Optimierte Geruchsreduktion beim Kochen mit komplexen Geruchsmolekülketten (z. B. Fischgerüche).
  • Große Filteroberfläche mit hoher Geruchsreduktionsrate
  • Anti-Pollen-Funktion: Der Filter hält eine extrem hohe Menge an Pollen in der Luft zurück und deaktiviert die Allergene, die vom Filter zurückgehalten werden.
  • Filterstandzeit von 360 Std. bei intensivem Kochen (nicht regenerierbar)
  • Sehr geringes Geräusch mit optimierter Psychoakustik
  • Einfache Zugänglichkeit und einfache Entnahme von oben durch den Lufteinlass
  • CleanAir Plus Ersatzbedarffilterset HZ9VRCR1.
  • Bei Umluftbetrieb 2 x 2 direkt integrierte, leistungsstarke cleanAir Plus Umluftfilter

Planungs- und Installationshinweise

  • Geeignet für Abluft- oder Umluftinstallationen in 4 verschiedenen Optionen (ungeführt, teilweise und vollständig geführte Umluft oder Abluft). Im Lieferumfang des Kochfeldes ist das Installationszubehör für ungeführte Umluft, darunter vier Geruchsfilter cleanAir Plus und ein Teleskopschieber, enthalten. Das mitgelieferte Zubehör ermöglicht eine einfache und schnelle Montage und ist in allen Arbeitsplattentiefen ≥60cm planbar.
  • Notwendig bei teil- und vollgeführter Umluft - immer als Geräteset bestellen!
  • Im Geräteset ist der erste relevante Bogen bereits enthalten:
  • Arbeitsplattentiefe ≥ 60 cm - gekürzte Auszüge (90° „S“ Flachkanalbogen HZ9VDSB4, männlich)
  • Arbeitsplattentiefe ≥ 70 cm - Standardauszüge (90° „L“ Flachkanalbogen HZ9VDSB2, männlich)
  • Für eine teilgeführte Umluft bis in den Sockelbereich bieten wir eine Vorzugsverrohrung als Zubehör-Set HZ9VDKR2 an (ausgelegt für eine Arbeitshöhe bis zu 960 mm).
  • Für eine individuelle vollgeführte Umluft  steht umfangreiches Sonderzubehör zur Verfügung.
  • Notwendig bei Abluft - immer als Geräteset bestellen!
  • Im Geräteset ist der erste relevante Bogen bereits enthalten:
  • Arbeitsplattentiefe ≥ 60 cm - gekürzte Auszüge (90° „S“ Flachkanalbogen HZ9VDSB4, männlich)
  • Arbeitsplattentiefe ≥ 70 cm - Standardauszüge (90° „L“ Flachkanalbogen HZ9VDSB2, männlich)
  • Weiteres Zubehör für die Luftführung muss auf Basis der individuellen Planung gesondert bestellt werden. Hierzu bieten wir umfangreiches Zubehör an.
  • Zur Vervollständigung der vollgeführten Umluft oder für jede andere individuelle Umluftplanung ist verschiedenes Kanalzubehör erhältlich.
  • Planungshinweise:
  • Die Planung ist möglich als Wand- und Inselplanung
  • Das Produkt und die Zubehöre erfüllen die Bestimmungen des Nadelflammtest (gemäß IEC 60695-11-5) und die Baustoffklasse B1 (nach DIN 4102-1).
  • Ausnahme: Das Zubehör HZ9VDSS2 Flexmanschette erfüllt den Nadelflammtest (nach IEC 60695-11-5) und die Baustoffklasse B2 (nach DIN 4102-1).
  • Die maximale Eintauchtiefe beträgt 223 mm unter Glas für aufsatzmontierte Geräte und 227 mm für Geräte, die für den flächenbündigen Einbau geeignet sind (modellabhängig).
  • Das Gerät muss von unten frei zugänglich bleiben
  • Es ist kein Zwischenboden unter dem Gerät notwendig. Die Schubladen müssen entnehmbar sein. Die Rückwand kann gelassen werden - es wird lediglich ein Ausschnitt für den Luftaustritt (Position und Größe können den Installationsanweisungen entnommen werden) benötigt.
  • Eine Installation in ungeführter Umluft erfordert eine vertikale Öffnung von min. 25 mm hinter der Rückwand der Möbel. Für eine optimale Leistung werden 50 mm empfohlen.
  • Die minimale Arbeitsplattenstärke beträgt 16 mm für aufsatzmontierte und flächenbündig montierte Geräte mit dem Standard Installationssystem.
  • Das Gesamtgerätegewicht beträgt 26 kg. Die Tragfähigkeit und Stabilität insbesondere bei dünnen Arbeitsplatten ist durch geeignete Unterkonstruktionen sicherzustellen. Hierbei sind das Gerätegewicht (mitsamt entsprechender Beschwerungen wie z. B. befüllter Töpfe) und die Spezifikationen des Arbeitsplattenherstellers zur strukturellen Integrität zu beachten.
  • Für alle teil- und ungeführten Umluftplanungen, wird eine Luftrückstromöffnung von ≥ 400 cm² im Sockelbereich benötigt. Die Öffnung kann über Auslassgitter, Lamellengitter oder leicht gekürzte Sockel, abhängig vom Sortiment des Küchenmöbelherstellers, realisiert werden.
  • Der Luftauslass auf der Geräterückseite kann direkt mit einem Flachkanalelement (NW 150) kombiniert werden.
  • Verrohrungen bis zu 8 m mit drei 90° Bögen möglich
  • Bei Installation einer Luftführung im Abluftbetrieb und einer kamingebundenen Feuerstelle, muss die Stromzuführung mit einem geeigneten Sicherheitsschalter versehen werden. Dies ist bei einer Installation in Umluftführung nicht erforderlich.
  • Im Abluftbetrieb sollte eine Rückstauklappe mit einem maximalen Öffnungsdruck von 65 Pa installiert werden.
Warenzeichen des LieferantenSiemens
Modellkennung des LieferantenED811HQ26E
Energieeffizienzklasse ... auf einer Skala von A+++ (höchste Effizienz) bis D (geringste Effizienz)B
Jährlicher Energieverbrauch61,8 kWh/Jahr
Klasse fluiddynamische Effizienz ... auf einer Skala von A (höchste Effizienz) bis G (geringste Effizienz)A
fluiddynamische Effizienz28,1 %
Beleuchtungseffizienzklasse ... auf einer Skala von A (höchste Effizienz) bis G (geringste Effizienz)-
Beleuchtungseffizienz- lx/Watt
Klasse Fettabscheidegrad ... auf einer Skala von A (höchste Effizienz) bis G (geringste Effizienz)B
Fettabscheidegrad94,0 %
Luftstrom bei maximaler Geschwindigkeit500 m³/h
Luftstrom bei minimaler Geschwindigkeit154 m³/h
Luftschallemissionen minimal verfügbare Geschwindigkeit (in dB(A) re 1 pW)42 dB(A) re 1 pW
Luftschallemissionen maximal verfügbare Geschwindigkeit (in dB(A) re 1 pW)69 dB(A) re 1 pW
Anschlusswert7400 W
Anzahl Gebläse1
Breite802 mm
Bruttogewicht31.0 kg
Drahtlose Kommunikation möglichJa, im Gerät eingebaut
Fern-UpgradeJa
Frequenz50-60 HZ
GerätefarbeSchwarz
Gewicht26.3 kg
Höhe223 mm
Installationshinweis StarkstromHinweis: Dieses Produkt benötigt für seinen ordnungsgemäßen Betrieb eine Kraftstromquelle und ist nicht mit einem normalen Netzstecker ausgestattet. Die Installation nicht-steckerfertiger Geräte ist vom jeweiligen Netzbetreiber oder von einem eingetragenen Fachbetrieb vorzunehmen der Ihnen auch bei der Einholung der Zustimmung des jeweiligen Netzbetreibers für die Installation des Gerätes behilflich ist.
Länge Anschlusskabel110 cm
MarkennameSiemens
Maßzeichnungen7904214_1.jpg;7904214_2.jpg;7904214_3.jpg;7904214_4.jpg;7904214_5.jpg;7904214_6.jpg;7904214_7.jpg;7904214_8.jpg;7904214_9.jpg;7904214_10.jpg;7904214_11.jpg;7904214_12.jpg;7904214_13.jpg;7904214_14.jpg;7904214_15.jpg;7904214_16.jpg;7904214_17.jpg;7904214_18.jpg
mitgeliefertes Zubehör1 x Teleskopschieberelement für Umluft, 1 x Clean Air Plus Geruchsfilter
Remote-Update zur WartungJa
SicherheitsvorrichtungenAbschaltung bei Leck-Erkennung;Abschaltung durch Pfannen-/Topferkennung;Abschaltung nach Inaktivitätsdauer;Kindersicherung
Spannung220-240/380-415 V
SprachsteuerungJa, mit optionalem Zubehör
SteuerungElektronisch
Tiefe522 mm
TypeED811HQ26E
Verwendete KommunikationstechnologieBluetooth;WiFi

Service, den wir Ihnen gerne bieten.

Als Fachhändler endet unsere Leistung nicht mit dem Bezahlen - wir lassen Sie auch beim Onlineeinkauf nicht im Stich. Denn wir montieren und installieren Ihre Großgeräte auf Wunsch und erklären Ihnen dann ausführlich, wie Sie diese jetzt optimal nutzen können. So können Sie an Ihrer Neuanschaffung schon nach kurzer Zeit Freude haben.

Diesen Service bieten wir Ihnen in einem Umkreis von 50 km rund um 80939 München. Die Preise für Montagearbeiten berechen sich nach Aufwand - hier erstellen wir Ihnen gern auf Wunsch ein individuelles Angebot.

Für eine Vielzahl von Service- und Montageleistungen bieten wir Ihnen, abhängig vom Gerätetyp, vorkalkulierte Preise, die Sie sich schon bei der Onlinebestellung sichern können. Diese Leistungen finden Sie in unserem Onlineshop direkt am Gerät.

Unser Service

Lieferung & Service

Lieferung & Service
von MO. - SA.

Einbau, Anschluss und Altgerätemitnahme

Einbau, Anschluss
und Altgerätemitnahme

Service & Beratung von Ihrem Fachhändler vor Ort

Service & Beratung
von Ihrem Fachhändler vor Ort


Herstellerkontaktdaten von SIEMENS

siemens-info-line@bshg.com

+49 89 4590-09

Carl-Wery-Straße 34, 81739 München, Deutschland

HINWEIS: Die Herstellerkontaktdaten werden regelmäßig geprüft. Änderungen seitens der Hersteller können jedoch zeitverzögert bei uns eingehen.